横浜市鶴見区上の宮2丁目 新築戸建

物件情報更新日:2022年11月29日| 次回更新予定日:2026年1月28日

新築戸建新築戸建

地図で見る
230903

横浜市鶴見区上の宮2丁目16-25

この物件のお問合せ

価 格
5680万円 ★仲介手数料0円!★
間取り 3LDK 築年月 2023/05
交 通 東急東横線菊名駅 徒歩 約14分 建物面積 81.30m²

物件画像

※各画像をクリックすると拡大して表示します







※各画像をクリックすると拡大して表示します

★仲介手数料0円!★
★土地約82㎡!建物約81㎡!の3LDK+ロフト
★カースペースあり!
★設備・仕様…モニター付きインターホン、食洗機、浄水器、ペアガラス、ウォシュレット
 床暖房、浴室暖房乾燥機付きユニットバス…など各種設備が充実しています。

敷地が広いからできる贅沢な2階建てです。
LDKと水廻りが同じフロアーにあるので奥様にはうれしい家事動線
LDKは約17.5帖と広々。ご家族でゆっくりくつろぎたい方にオススメです。
さらに…お風呂は1坪タイプ、洗面室も広め、各部屋に収納確保、など全体的に広めです。
キッチンは家族との会話やコミュニケーションが取りやすい対面式キッチンです。
小さなお子さんがいる場合でも、リビングに目が届きますから、安心して料理することができます。
浴室乾燥機付きなので、雨の日でも浴室で洗濯物を乾かすことができて、便利です。
バルコニー2か所
フラット35S対応可能
とっても安心な「建物10年」保証!!

小学校、中学校が近くにあり、子育て世代にはうれしい立地ですね。

~周辺施設のご案内~

《お買いもの》
○サミット:徒歩10分
○オリンピック:徒歩13分
○セブンイレブン:徒歩5分
《学校》
○菊名小学校:徒歩5分
○上の宮中学校:徒歩4分
○きくなハート保育園:徒歩1分
《その他の施設》
○上の宮第2公園:徒歩1分
○郵便局:徒歩11分

詳細資料をご用意してありますので詳しくご説明をさせて頂きます。
ご興味のある方はお気軽にお問い合わせ下さい。
この物件のお問合せ

物件詳細情報

種別 新築戸建 価格 5680万円 間取り 3LDK
所在地 横浜市鶴見区上の宮2丁目16-25
交通 東急東横線菊名駅 徒歩 約14分
築年月 2023/05 新築/中古 新築・未入居
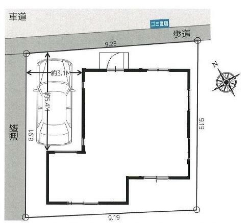
建物面積 81.30m²
建物階数 地上2階 
建物構造 木造
駐車場 有 
引渡/入居時期 期日指定 2023/05 下旬 現況 未完成
地目 宅地 用途地域 第一種低層住居専
都市計画 市街化区域
土地面積 82.99m²
建ぺい率 50% 容積率 100%
土地権利 所有権 接道 北東 幅員約 6.6m(公道)
学区(小学校) 菊名小学校 学区(中学校) 上の宮中学校
仲介手数料 無料 取引態様 仲介
設備・条件 都市ガス、公営水道、公共本下水、駐車場有、
物件番号 230903

クイック!ローンシュミレーション


物件価格 万円
頭金(万単位) 万円
月々の返済額

※35年金利0.975%(変動金利)での算出となります。別途諸費用が必要となります。

周辺地図

Loading...

横浜市鶴見区上の宮2丁目 新築戸建の関連オススメ物件

  • 横浜市鶴見区市場西中町 新築戸建 A棟
    4480万円3LDK
    横浜市鶴見区 市場西中町1-5

    京急本線鶴見市場駅


  • JR京浜東北・根岸線鶴見駅


  • JR京浜東北・根岸線鶴見駅
※物件掲載内容と現況に相違がある場合は現況を優先と致します。

物件お問合せフォーム

この物件に関するお問合せは下記のフォームにご記入のうえ、「お問い合わせ内容を送信する」ボタンをクリックしてください。
1営業日以内に担当者より返信させていただきます。

    件名

    ※件名は変更できません

    お名前 *必須

     例)鈴木一郎

    お名前(ふりがな) *必須

     例)すずきいちろう

    メールアドレス *必須

     例)abcde@sample.com

    電話番号または
    携帯電話番号 *必須

    例)031112222(半角数字・ハイフン不要)

    ※ご見学を希望される場合は、お電話にてご連絡を差し上げる場合がございます。

    ご住所


    例)○○県○○市1丁目1-1

    購入希望時期

    ご希望される項目を
    お選びください

    この物件を詳しく教えて欲しい物件を実際に見たい資料を送って欲しい家探しについて相談したい資金計画の相談がしたい

    その他ご連絡事項など

    上記内容でよろしければチェックし、下記のボタンをクリックして下さい。

       


    お問合せ先

    株式会社いえまる 私たちがお手伝いします。お気軽にご連絡ください。
    営業時間10:00~20:00
    住所 〒210-0006 川崎市川崎区砂子1丁目2-12 ハレーちとせ502
    電話番号 TEL 044-201-6130 / FAX 044-201-6131
    定休日 水曜日
    代表者 山岸 悟
    免許番号 神奈川県知事(2)第27615号
    加盟団体 (社)全国宅地建物取引業保証協会

    非公開物件を今すぐ見る

    お電話の場合はこちら